Офис Каргилл / Каргилл конкурс, 2019
Местоположение: Москва
Статус: конкурс
Площадь дизайн проекта: 1500м2
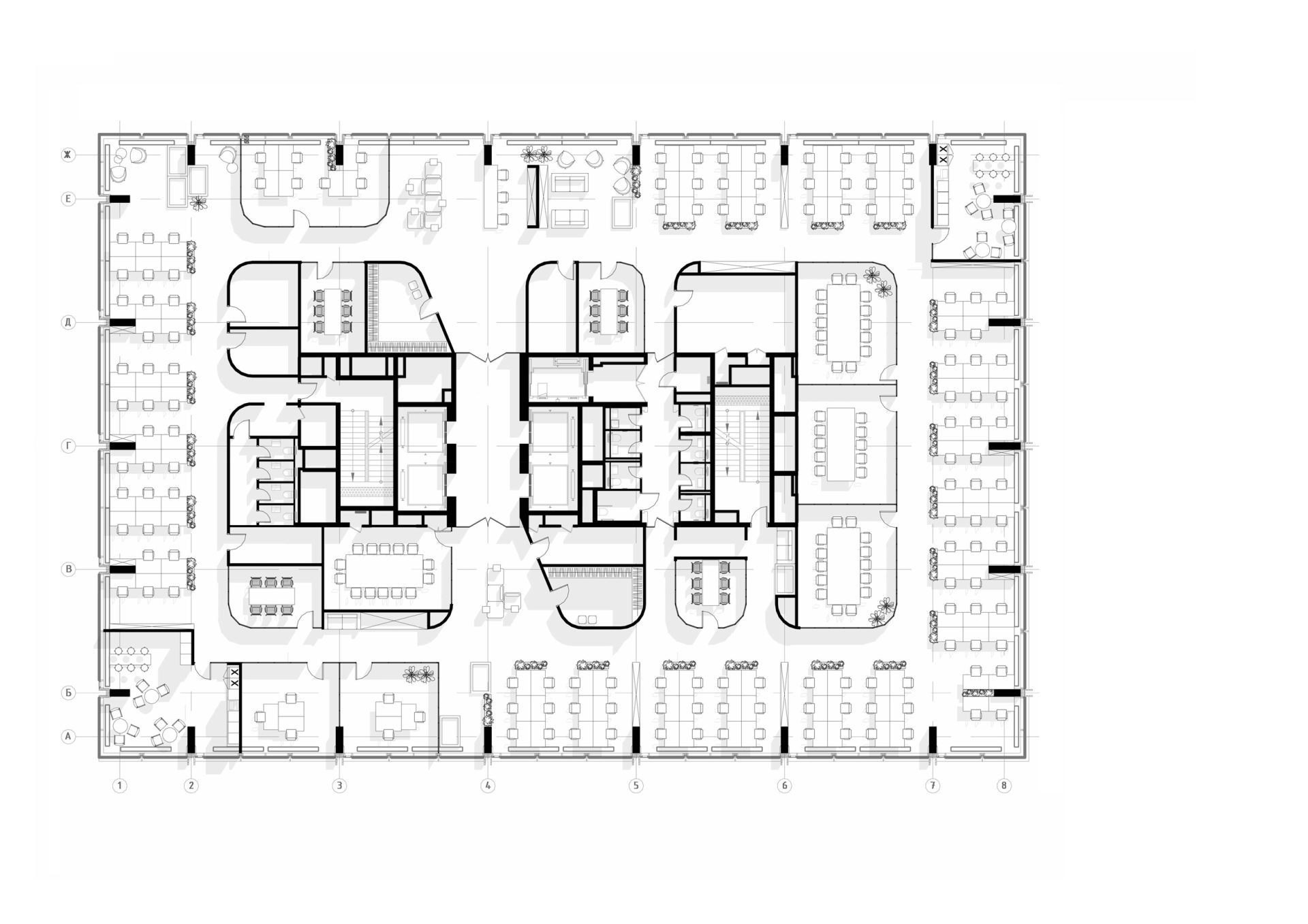
Офисное пространство организовано вокруг выразительной стойки секретаря в виде стилизованного поля пшеницы, символизирующего связь компании с аграрной отраслью. Рабочие места расположены у панорамных окон для естественного света, а переговорные — в центральной части офиса, создавая компактный деловой центр и акустический буфер. Стойка секретаря выступает навигационным центром, от которого распределяются пути ко всем функциональным зонам, обеспечивая комфорт и эффективность сотрудников.